Ипотека: Сельская, Семейная, IT, Военная. Мы подходим под все программы. Аккредитация от СберБанк, Совкомбанк, ВТБ, Россельхозбанк и ДОМ.РФ

Проект Гайдай

Характеристики (Проект Гайдай):

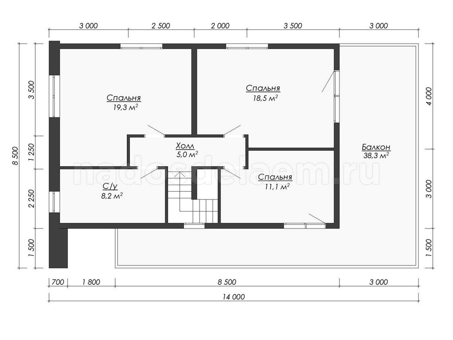
Этажей: 2
Размер: 14×8.5 м
S общая: 206,3 кв.м
Терраса: есть
Балкон: есть
Крыльцо: нет
Эркер: нет
Санузлов: 2
Спален: 4
Крыша: прямая
Кукушка: нет
2 входа: нет
Топочная: да
Гараж: нет

Этот проект мы можем построить:

Этажей: 2 Размер: 14x8.5 м S общая: 206,3 кв.м Терраса: есть Балкон: есть Крыльцо: нет Эркер: нет Санузлов: 2 Спален: 4 Крыша: прямая Кукушка: нет 2 входа: нет Топочная: да Гараж: нет
Важно отметить, что комплектация домов может варьироваться в зависимости от проекта и требований заказчика.
Этот проект мы можем построить:

Конечно. Любой проект из каталога можно адаптировать под вас. Нужно подвинуть стену, добавить террасу, изменить высоту потолков или заменить материал облицовки — все это обсуждаемо. Главное, чтобы изменения не нарушали надежность конструкции, а остальное сделаем.

 

Да, строим. Если у вас уже есть готовый проект на руках, мы его внимательно изучим, проверим конструктив и сделаем расчет стоимости. Если проекта нет, а есть только картинка или эскиз «от руки» — не проблема, сами разработаем рабочую документацию и построим по ней.

 

Цена зависит от материалов и сложности.

Коробка под крышу (теплый контур) ставится за 3–5 месяцев в зависимости от площади и сложности архитектуры.

Да, строим через аккредитацию в крупных банках, работаем с семейной и IT-ипотекой.

Обычно мы берем это на себя через проверенных поставщиков (заводские цены, контроль качества), но если у вас есть свои выходы — можем работать с вашим материалом.

Да, всегда можем съездить на текущие стройки, чтобы вы вживую увидели культуру работ и качество строительства.

Да, современные добавки и технологии прогрева позволяют вести кладку и лить бетон до -15°C без потери качества.

Да, конечно. Если среди готовых вариантов вы не нашли «тот самый», мы можем спроектировать дом с нуля специально под вашу семью и особенности участка. Расскажете свои хотелки — где будет кухня, сколько нужно спален, где поставить террасу — и мы превратим это в грамотные чертежи. Главное, что мы сразу проектируем так, чтобы это было реально и надежно построить, а не просто красиво нарисовать.

Наши успешно завершенные проекты - примеры надежности, качества и современного дизайна. Свежие новости в нашем ВК-канале.

В разделе фото мы собрали фотографии с объектов по строительству домов из разных материалов.

Гарантированный расчет строительства дома

Добро пожаловать в Надо-Сделаем! Мы рады видеть вас на нашем сайте и готовы помочь вам с вашими задачами!

Надо-Сделаем – ваш надежный партнер в строительстве домов по всей Центральной России. Мы строим и продаем качественные дома под ключ, подбираем участки и являемся аккредитованным застройщиком от Сбербанка, Россельхозбанка, ВТБ, Альфа-Банка, Дом.РФ. Наш принцип – ваше комфортное жилье.

Каждый дом — это возможность создать пространство, где ваша семья будет вдохновляться современными идеями, комфортом и уютом.

Мы используем файлы cookie и сервис Яндекс.Метрика. Оставаясь на сайте, вы подтверждаете свое согласие на обработку данных. Подробнее о программных средствах и куки можно прочитать здесь.